12 ДД

Чертеж изделия:
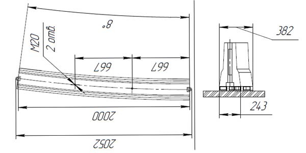
Характеристики изделия:
ПараметрЗначение
длина2052 мм
ширина382 мм
высота550 мм
масса1078 кг
нормативный документТУ 5899-002-61548960-2010

12 ДД  Блоки парапетные двухсторонние переносные радиусные по ТУ 5899-002-61548960-2010.