ПО-20

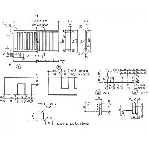
Чертеж изделия:
Характеристики изделия:
ПараметрЗначение
длина1900 мм
ширина60 мм
высота900 мм
вес158 кг
серияТП 501-7-014.91

ПО-20 Панели ограждения по проекту ТП 501-7-014.91.