ПСЛ 20

Чертеж изделия:
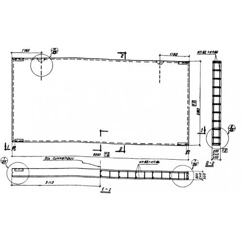
Характеристики изделия:
ПараметрЗначение
длина6230 мм
ширина2985 мм
высота200 мм
вес5300 кг
серияСТ 02-33

ПСЛ 20 Панели стеновые из легкого бетона по серии СТ 02-33.