П 20.20

Чертеж изделия:
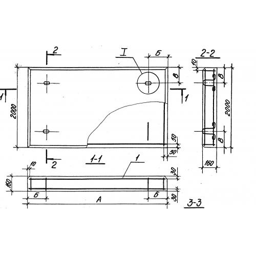
Характеристики изделия:
ПараметрЗначение
длина2000 мм
ширина2000 мм
высота160 мм
масса1600 кг
нормативный документСерия 3.504.1-20

П 20.20 Плиты покрытия сборные по Серии 3.504.1-20.