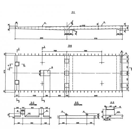
П-8
Характеристики изделия:
| Параметр | Значение |
|---|---|
| длина | 6110 мм |
| ширина | 2220 мм |
| высота | 254 мм |
| вес | 4500 кг |
| серия | 3.503.9-43/89 |
Цена:
Рассчитать стоимостьП-8 Блоки плит по серии 3.503.9-43/89.
| Параметр | Значение |
|---|---|
| длина | 6110 мм |
| ширина | 2220 мм |
| высота | 254 мм |
| вес | 4500 кг |
| серия | 3.503.9-43/89 |
П-8 Блоки плит по серии 3.503.9-43/89.
