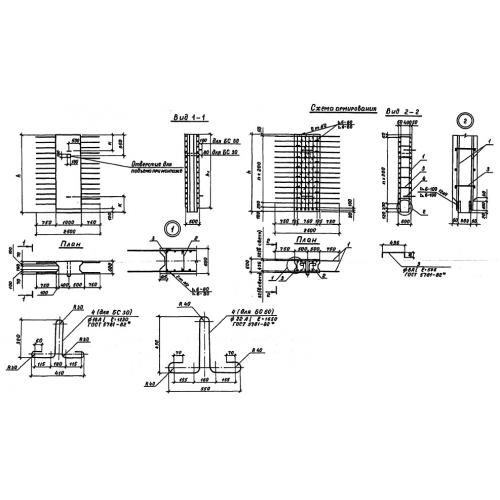
БС 30.10 блок стенки

Чертеж изделия:
Характеристики изделия:
ПараметрЗначение
длина3000 мм
ширина1000 мм
высота500 мм
вес3280 кг
нормативный документСерия 3.503.1-94

БС 30.10 Блоки стенок по Серии 3.503.1-94.