Ф 300-74

Чертеж изделия:
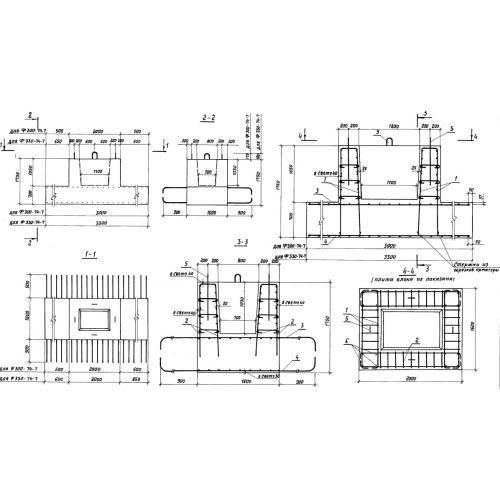
Характеристики изделия:
ПараметрЗначение
длина3400 мм
ширина3000 мм
высота1750 мм
вес14600 кг
нормативный документСерия 3.503.1-90

Ф 300-74 Симметричные блоки фундамента по Серии 3.503.1-90.