РП-1

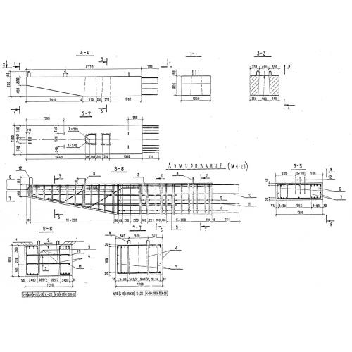
Чертеж изделия:
Характеристики изделия:
ПараметрЗначение
длина4770 мм
ширина1200 мм
высота800 мм
масса9100 кг
нормативный документСерия 3.503-23

РП-1 Блоки ригеля по Серии 3.503-23.