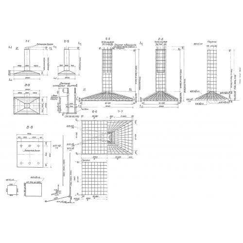
Б 3-4.0
Характеристики изделия:
| Параметр | Значение |
|---|---|
| длина | 3000 мм |
| ширина | 2000 мм |
| высота | 4000 мм |
| вес | 7700 кг |
| серия | 3.501.2-123 |
Цена:
Рассчитать стоимостьБ 3-4.0 Фундаментные блоки по серии 3.501.2-123.
| Параметр | Значение |
|---|---|
| длина | 3000 мм |
| ширина | 2000 мм |
| высота | 4000 мм |
| вес | 7700 кг |
| серия | 3.501.2-123 |
Б 3-4.0 Фундаментные блоки по серии 3.501.2-123.
