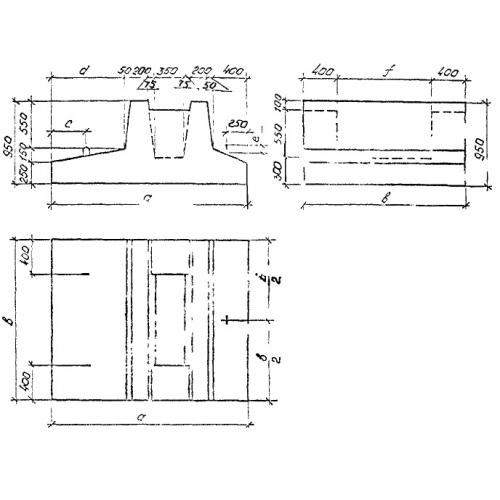
Ф 8 блок фундамента

Чертеж изделия:
Характеристики изделия:
ПараметрЗначение
длина2850 мм
ширина3000 мм
высота950 мм
масса9200 кг
нормативный документСерия 3.501.1-179.94

Ф 8  Блоки фундаментов по Серии 3.501.1-179.94.