Т 1

Чертеж изделия:
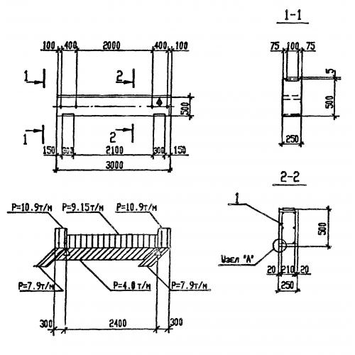
Характеристики изделия:
ПараметрЗначение
длина3000 мм
ширина250 мм
высота500 мм
вес940 кг
серия3.016.1-11

Т 1 Траверсы по серии 3.016.1-11.