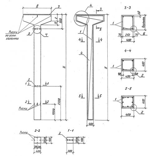
К 20 колонна сборная

Чертеж изделия:
Характеристики изделия:
ПараметрЗначение
длина6800 мм
ширина1200 мм
высота1200 мм
масса3200 кг
нормативный документСерия 3.015-1/92

К 20  Колонны сборные Серия 3.015-1/92.