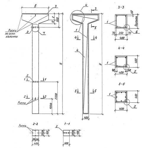
К 18 колонна сборная

Чертеж изделия:
Характеристики изделия:
ПараметрЗначение
длина6200 мм
ширина1800 мм
высота1800 мм
масса3200 кг
нормативный документСерия 3.015-1/92

К 18  Колонны сборные Серия 3.015-1/92.