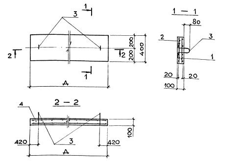
ПП 6 плита

Чертеж изделия:
Характеристики изделия:
ПараметрЗначение
длина1750 мм
ширина400 мм
высота100 мм
вес180 кг
нормативный документСерия 3.006.1-8

ПП 6  Плоские подкладки под стыки сборных элементов канала Серия 3.006.1-8.