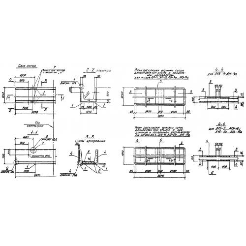
Л 15 лотки

Чертеж изделия:
Характеристики изделия:
ПараметрЗначение
длина5970 мм
ширина1840 мм
высота720 мм
масса4950 кг
нормативный документСерия 3.006.1-2/87

Л 15 Лотки теплотрасс Серия 3.006.1-2/87.