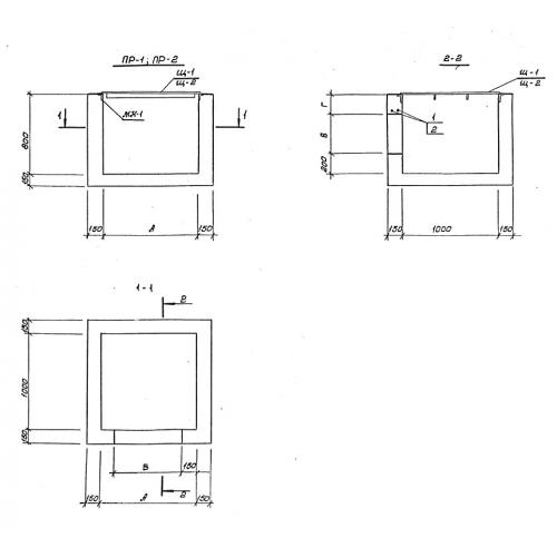
ПР-2

Чертеж изделия:
Характеристики изделия:
ПараметрЗначение
длина1600 мм
ширина1300 мм
высота950 мм
вес2150 кг
серия3.006 КР-1

ПР-2 Монолитные приямки по серии 3.006 КР-1.