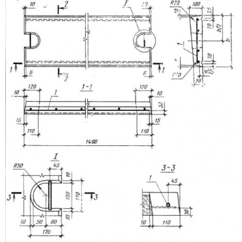
ПП 15-50

Чертеж изделия:
Характеристики изделия:
ПараметрЗначение
длина1490 мм
ширина500 мм
высота100 мм
вес150 кг
серия1.438-1

ПП 15-50 Плиты парапетные по серии 1.438-1.