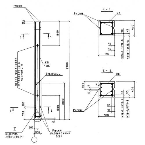
1К 78 колонны

Чертеж изделия:
Характеристики изделия:
ПараметрЗначение
длина8700 мм
ширина400 мм
высота400 мм
масса3500 кг
нормативный документСерия 1.423.1-3/88

1К 78 Колонны Серия 1.423.1-3/88.