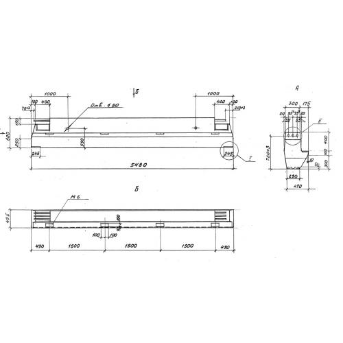
Б 41 ригели

Чертеж изделия:
Характеристики изделия:
ПараметрЗначение
длина5480 мм
ширина495 мм
высота800 мм
масса3800 кг
нормативный документСерия 1.420-35.95

Б 41  Ригели с полками для опирания плит  (однополочные ригели) Серия 1.420-35.95.