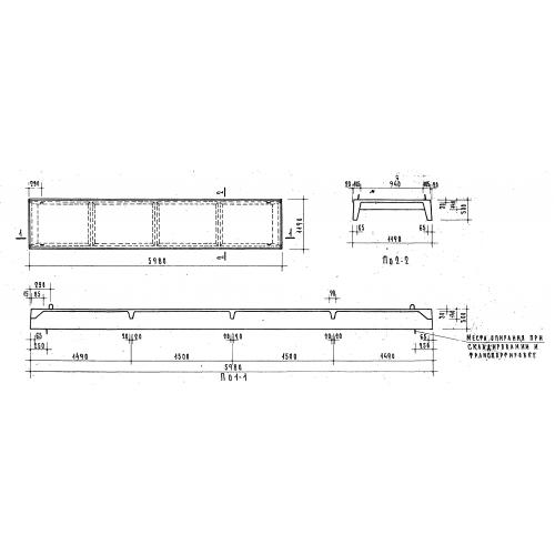
ПР 60-12

Чертеж изделия:
Характеристики изделия:
ПараметрЗначение
длина5970 мм
ширина1190 мм
высота300 мм
вес1325 кг
серия1.165-1

ПР 60-12 Панели ребристые по серии 1.165-1.