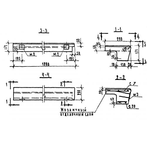
ЛСП 11-17 ступени лестничные

Чертеж изделия:
Характеристики изделия:
ПараметрЗначение
длина1290 мм
ширина290 мм
высота171 мм
масса105 кг
нормативный документСерия 1.155-1

ЛСП 11-17  Лестничные ступени (площадочные вкладыши) Серия 1.155-1.