СБ 5.1-12.24-5-п-1.01

Чертеж изделия:
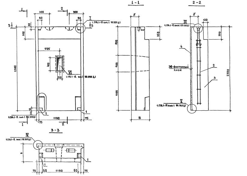
Характеристики изделия:
ПараметрЗначение
длина1190 мм
ширина500 мм
высота2380 мм
масса2110 кг
нормативный документСерия 1.138.1-12

Серия 1.138.1-12

СБ – стеновые блоки наружных стен, тип блока 5 – парапетный блок.