ПБК 36.13 плиты балконные

Чертеж изделия:
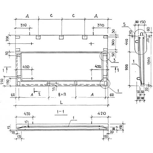
Характеристики изделия:
ПараметрЗначение
длина3590 мм
ширина1340 мм
высота150 мм
масса1425 кг
нормативный документСерия 1.137.1-9

ПБК 36.13  Плиты балконные консольные Серия 1.137.1-9.