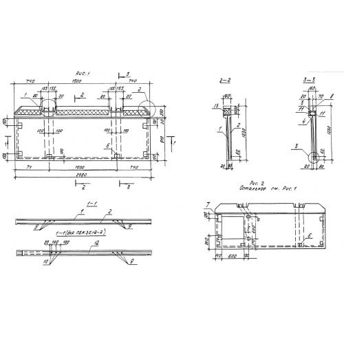
ПБК 30.12

Чертеж изделия:
Характеристики изделия:
ПараметрЗначение
длина2980 мм
ширина1230 мм
высота100 мм
вес850 кг
серия1.100.1-7

ПБК 30.12 Плиты балконные плоские сплошные консольные по серии 1.100.1-7.