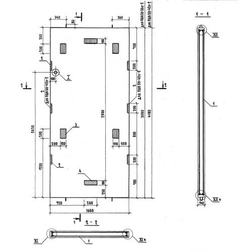
ПШЛ 50-36

Чертеж изделия:
Характеристики изделия:
ПараметрЗначение
длина1660 мм
ширина140 мм
высота3580 мм
вес2080 кг
серия1.089.1-2

ПШЛ 50-36 Панель шахты для пассажирского лифта по серии 1.089.1-2.