3ПБ 34 перемычки брусковые

Чертеж изделия:
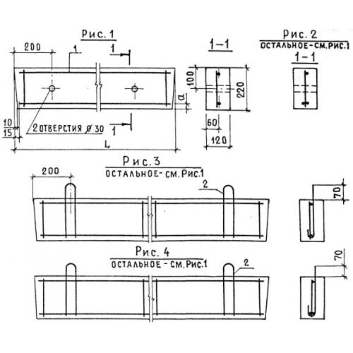
Характеристики изделия:
ПараметрЗначение
длина3370 мм
ширина120 мм
высота220 мм
масса222 кг
нормативный документСерия 1.038.1-1

3ПБ 34  Перемычки брусковые Серия 1.038.1-1.