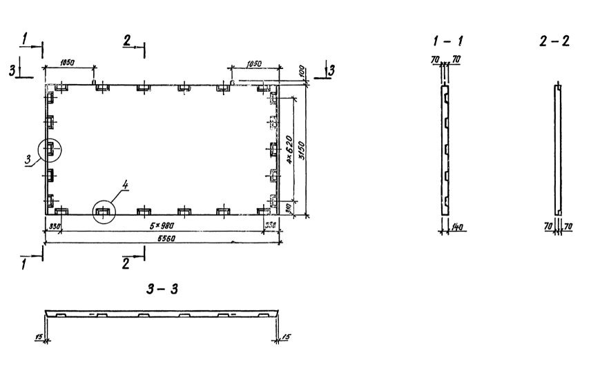
Д 56.32

Чертеж изделия:
Характеристики изделия:
ПараметрЗначение
длина5560 мм
ширина140 мм
высота3150 мм
масса6230 кг
нормативный документСерия 1.020.1-3пв

Д 56.32  Диафрагмы жесткости  Серия 1.020.1-3пв.