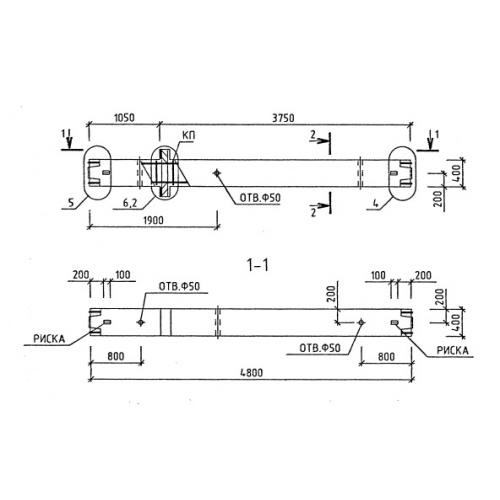
1КС 48 колонны

Чертеж изделия:
Характеристики изделия:
ПараметрЗначение
длина4800 мм
ширина400 мм
высота400 мм
масса1920 кг
нормативный документСерия 1.020-1/87

1КС 48  Колонны средние Серия 1.020-1/87.