Специальная угловая одноцепная опора с оттяжкой УПС 23
Краткая информация
При обычном уровне эксплуатации анкерные опоры воспринимают одностороннюю продольную нагрузку натяжения тросов и проводов. Опоры железобетонные ЛЭП предназначены для использования в районах с ветровыми показателями I-II. Расчетные температуры для использования анкерных опор принимаются до -40°С. Для эксплуатации в северных широтах, где температура может, опускается ниже сорокоградусной отметки, опоры изготавливаются по заказу, учитывая особенность климатических условий. Опоры УПС 23 предназначены для использования в неагрессивных районах . Для эксплуатации в агрессивных средах опоры анкерные предварительно защищают специальными веществами. Защитное покрытие наносится на 3 метра от нижнего конца изделия. Опоры УПС 23 выдерживают монтажные усилия при натяжке трех проводов. Все изделия от компании «Бетондеталь» проходят жесткий контроль качества и соответствуют всем стандартам и нормам ГОСТ.
Производство
Материалом для изготовления анкерных опор служит тяжелый бетон вибрированный. Бетон для опор обладает низкой водонепроницаемости W8. Морозостойкость опор для различных климатических условий F150-F200. Высококачественный бетон, используемый в процессе производства опор УПС 23 устойчив к воздействию окружающей среды и химических веществ. Бетон имеет свойства устойчивости к коррозии и ветровым нагрузкам.
Изделия армируются стальным каркасом изготовленный из стрежневой арматуры диаметра 12-20 мм. Арматура выполняется из предварительно напряженной стали высокого класса (АIV, A-V). Электрическое сопротивление между арматурой и закладными деталями не должно быть менее 10000 Ом. Абсолютно все металлические детали концевых опор предварительно обрабатываются антикоррозийными веществами. Железобетонные опоры УПС 23 - это высококачественное изделия, которое, при соблюдении всех технологических норм, способно прослужить не один десяток лет.
Монтаж
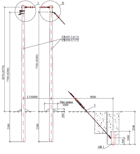
Опора УПС 23 закрепляется в котловане на глубину от 2 до 2,5 метров. Анкерные опоры применяются совместно с анкерными плитами. Стойку опоры устанавливают не вертикально, а с наклоном на 10-20 см в сторону, противоположную воздействию усилий от натяжения проводов.
Маркировка изделия
Маркировка анкерных опор УПС 23 представляет собой цифробуквенный набор, который включает в себе условные обозначения наименования изделия, цифровой индекс, указывающий на напряжение ВЛ и типоразмер.
Например, рассмотрим анкерные опоры УПС 23, где:
«УПС»- угловая специальная опора;
Цифра «23» - класс напряжения.
Хранение и транспортировка
Хранение опор УПС 23 осуществляется в горизонтальном положении, штабелями. Высота одного штабеля изделия не должна превышать более 5 изделий в стопке, для предотвращения опасности падения или деформации изделия. Стойки анкерные укладывают таким образом, что бы закладные изделия ни соприкасались, а изделия для крепления траверс располагались вертикально. Нижний ряд стоек располагается на прокладки специальной формы, а следующие ряды размещаются на деревянных прокладках.
